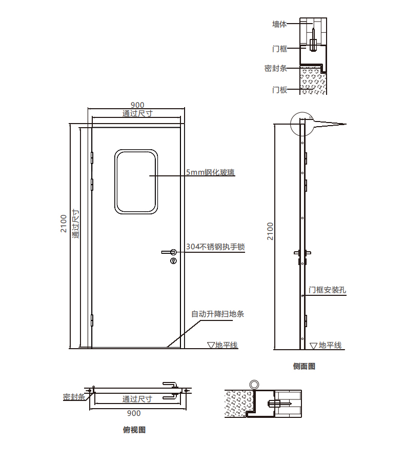
技术参数
1. 常规尺寸: 900*2100、1200*2100、1500*2100
2. 材质及厚度: 镀锌板,门框厚度1.2MM,门板厚度0.8MM
3. 表面处理:喷涂(静电粉、室外氟碳粉,可根据客户要求定制颜色)
4. 门板填充物:阻燃型纸蜂窝、防火铝蜂窝、岩棉
5. 视窗形状:外方内方、外方内圆、外圆内圆
6. 视窗常规尺寸:600*400MM双层视窗
7. 门锁规格:分体执手锁、连体执手锁、肘压锁、逃生锁
8. 门锁材质:304不锈钢
9. 合页类型:不锈钢脱卸式、暗藏式等
结构示图
